Zona de identificação
Código de referência
PT PCIP AAV/02/07/04/004/03/1/003
Título
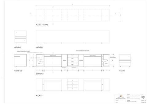
Projeto de execução de balcão para receção e vitrine - plantas, alçados e cortes (2010)
Data(s)
- 2010-12 (Produção)
Nível de descrição
Documento simples
Dimensão e suporte
Digital.
Zona do contexto
Nome do produtor
História administrativa
Entidade detentora
História do arquivo
Fonte imediata de aquisição ou transferência
Zona do conteúdo e estrutura
Âmbito e conteúdo
Escala: 1/10.




