Documento simples 005 - Recuperação do coro das freiras (2001)

Open original Objeto digital

Zona de identificação

Código de referência

PT PCIP AAV/02/01/04/0001/03/1/005

Título

Recuperação do coro das freiras (2001)

Data(s)

  • 2001-10 (Produção)

Nível de descrição

Documento simples

Dimensão e suporte

Digital.

Zona do contexto

Nome do produtor

História biográfica

Entidade detentora

História do arquivo

Fonte imediata de aquisição ou transferência

Zona do conteúdo e estrutura

Âmbito e conteúdo

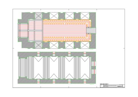
Plantas e cortes. Fase: Projeto de Execução. Escala: 1/50

Avaliação, selecção e eliminação

Ingressos adicionais

Sistema de arranjo

Zona de condições de acesso e utilização

Condições de acesso

Condiçoes de reprodução

Idioma do material

  • português

Script do material

Notas ao idioma e script

Características físicas e requisitos técnicos

Instrumentos de descrição

Existência e localização de originais

Existência e localização de cópias

Unidades de descrição relacionadas

Descrições relacionadas

Zona das notas

Identificador(es) alternativo(s)

Pontos de acesso

Pontos de acesso - Assuntos

Pontos de acesso - Locais

Pontos de acesso - Nomes

Pontos de acesso de género

Identificador da descrição

Identificador da instituição

Objeto digital (Matriz) zona de direitos

Objeto digital (Referência) zona de direitos

Objeto digital (Ícone) zona de direitos

Zona da incorporação

Assuntos relacionados

Pessoas e organizações relacionadas

Géneros relacionados

Locais relacionados