Zona de identificação
Código de referência
PT PCIP AAV/02/03/04/0004/03/2/001
Título
Obras de conservação : projeto de instalação elétrica (2002)
Data(s)
- 2002-11 (Produção)
Nível de descrição
Documento simples
Dimensão e suporte
Digital.
Zona do contexto
Nome do produtor
História administrativa
Entidade detentora
História do arquivo
Fonte imediata de aquisição ou transferência
Zona do conteúdo e estrutura
Âmbito e conteúdo
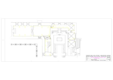
Plantas do circuito de iluminação, tomadas, quadro elétrico parcial e simbologia. Escala: 1/100.
Avaliação, selecção e eliminação
Ingressos adicionais
Sistema de arranjo
Zona de condições de acesso e utilização
Condições de acesso
Condiçoes de reprodução
Idioma do material
- português




