Identity area
Reference code
PT PCIP AAV/02/07/05/011
Title
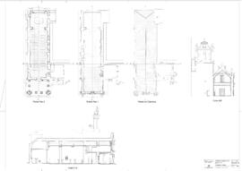
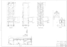
Igreja Paroquial de Nossa Senhora da Graça do Divor / Igreja de Nossa Senhora da Graça
Date(s)
Level of description
Subcoleção
Extent and medium
Digital
Context area
Repository
Archival history
Immediate source of acquisition or transfer
Content and structure area
Scope and content
Appraisal, destruction and scheduling
Accruals
System of arrangement
Conditions of access and use area
Conditions governing access
Conditions governing reproduction
Language of material
- Portuguese



